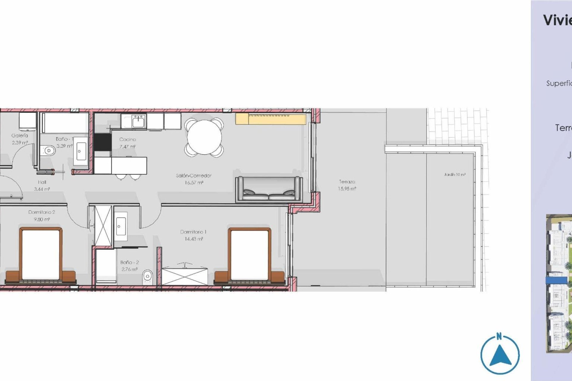
Appartements modernes et meublés à El Raso-Guardamar : un cadre de vie contemporain près de la plage et du golf Complexe résidentiel exclusif à Guardamar del Segura Découvrez ce complexe immobilier neuf exceptionnel composé de 120 appartements élégants situés à El Raso, un quartier très prisé de Guardamar del Segura sur la Costa Blanca. Entouré de paysages naturels et à proximité de la côte méditerranéenne, ce complexe résidentiel offre un équilibre parfait entre tranquillité et accessibilité. El Raso est réputé pour son environnement paisible tout en étant à quelques minutes seulement du centre-ville animé, des plages de sable fin et d'un large éventail de services, notamment des restaurants, des commerces et des installations de loisirs. Des logements contemporains conçus pour le confort et le style Le programme propose des appartements de 2 et 3 chambres avec différents agencements adaptés à tous les styles de vie. Choisissez parmi des logements en rez-de-chaussée avec jardin privé, des appartements en étage intermédiaire avec de spacieuses terrasses, ou des penthouses avec solarium privé, idéaux pour profiter du climat méditerranéen toute l'année. Tous les logements sont entièrement meublés et prêts à emménager, avec des cuisines entièrement équipées d'appareils électroménagers et des salles de bains complètes avec mobilier, miroirs et parois de douche. Chaque logement comprend également un parking souterrain et un débarras, garantissant commodité et fonctionnalité dès le premier jour. Équipements haut de gamme et habitat économe en énergie Ces logements modernes sont construits avec le souci du détail et conçus pour un confort maximal. Ils sont équipés de la climatisation centralisée, de volets électriques et d’un système d’éclairage complet. L’association de matériaux de qualité et d’un design intelligent crée des espaces de vie lumineux et fonctionnels qui améliorent le quotidien tout en garantissant l’efficacité énergétique. Des espaces communs exceptionnels et des équipements de qualité Le complexe résidentiel offre un large éventail d'équipements communs haut de gamme conçus pour la détente et le bien-être. Les résidents peuvent profiter d'une grande piscine entourée de jardins paysagers, d'une salle de sport entièrement équipée, d'un spa intérieur, d'un terrain de pétanque et d'une aire de jeux pour enfants. Chaque détail a été soigneusement pensé pour créer une communauté où confort, loisirs et vie sociale se côtoient. Emplacement de choix avec une excellente connectivité El Raso bénéficie d'un emplacement stratégique à proximité des principaux points d'intérêt : Centre-ville de Guardamar à 4 km Plage de Moncayo à 5 km Ciudad Quesada à 5 km Torrevieja et centre commercial Habaneras à 8 km Golf La Marquesa à 6 km Golf La Finca à 12 km Vistabella Golf à 18 km Aéroport d'Alicante à 30 km Aéroport de Murcia Corvera à 75 km Votre résidence idéale ou votre investissement sur la Costa Blanca Que vous recherchiez une résidence principale, une résidence secondaire ou une opportunité d'investissement judicieuse, ces appartements entièrement meublés à Guardamar del Segura offrent un rapport qualité-prix exceptionnel dans un emplacement côtier de premier choix. Contactez-nous dès aujourd'hui pour obtenir plus d'informations ou pour organiser une visite et réserver votre nouvelle résidence sur la Costa Blanca.