Fuente Álamo · Las Palas Villa · Nouvelle construction

  • 175m2
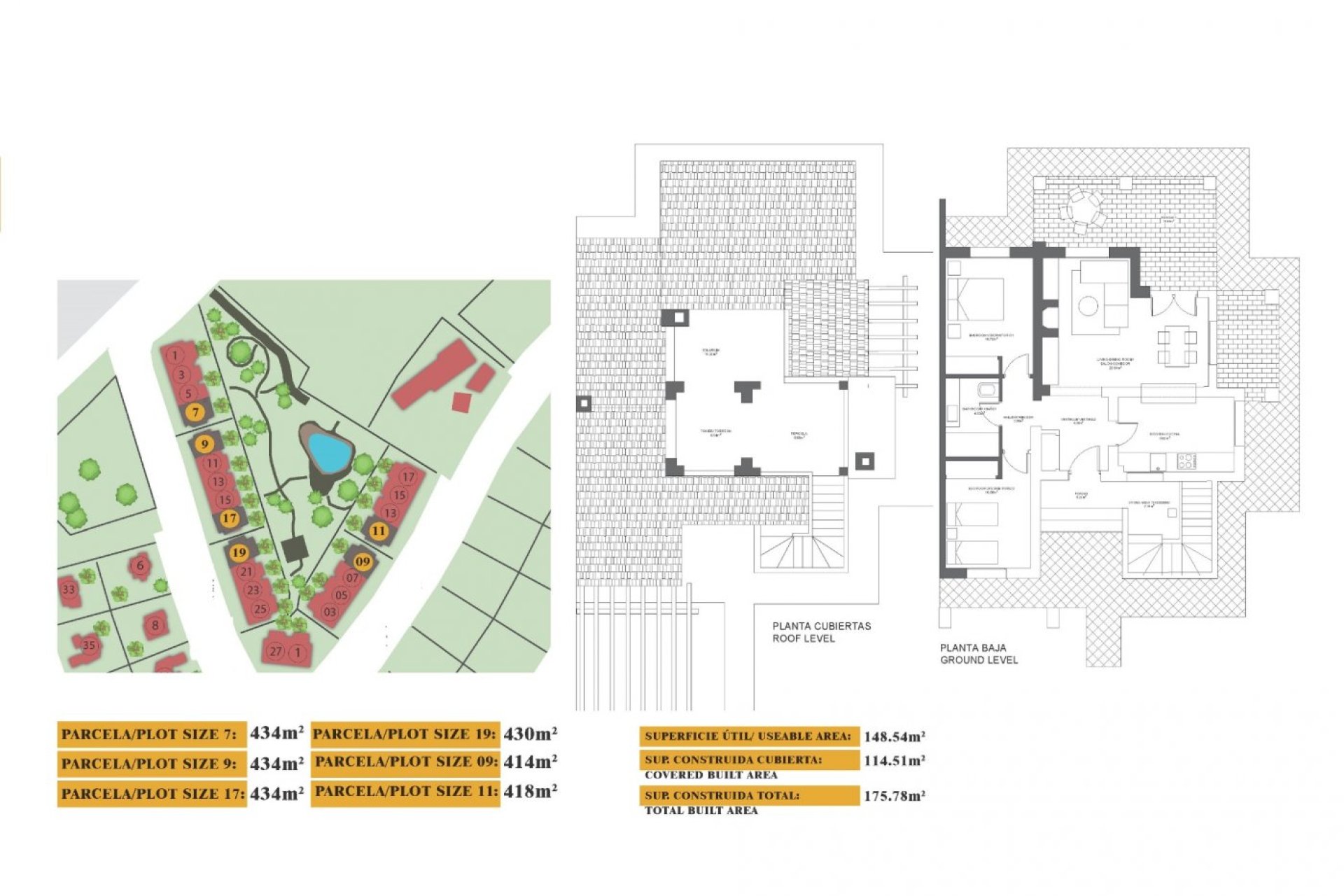
  • 430m2
  • 2
  • 1

Fuente Álamo · Las Palas Villa · Nouvelle construction

Description

VILLA JUMELÉE PRÊTE À L'EMPLOI À FUENTE ALAMO, MURCIA

Caractéristiques

Chambres: 2
Salles de bain: 1
Construit: 175m2
Utile: 148m2
Parcelle: 430m2
Distance à la plage: 7500 m
Garden
Gated
Number of Parking Spaces: 1
Air Conditioning: Pre-Installed
Double Bedrooms: 2
Near Golf / Golf Resort Property
Key Ready
Location: Coastal, Rural, Urbanisation
Parking - Space
Useable Build Space: 148 Msq.
Terrace: 45 Msq.
Beach: 7500 Meters
Storage / Trastero

Emplacement

Demande d’information

Responsable del tratamiento: JC IMMO Espagne, Finalidad del tratamiento: Gestión y control de los servicios ofrecidos a través de la página Web de Servicios inmobiliarios, Envío de información a traves de newsletter y otros, Legitimación: Por consentimiento, Destinatarios: No se cederan los datos, salvo para elaborar contabilidad, Derechos de las personas interesadas: Acceder, rectificar y suprimir los datos, solicitar la portabilidad de los mismos, oponerse altratamiento y solicitar la limitación de éste, Procedencia de los datos: El Propio interesado, Información Adicional: Puede consultarse la información adicional y detallada sobre protección de datos Aquí.
JC Immo
WhatsApp