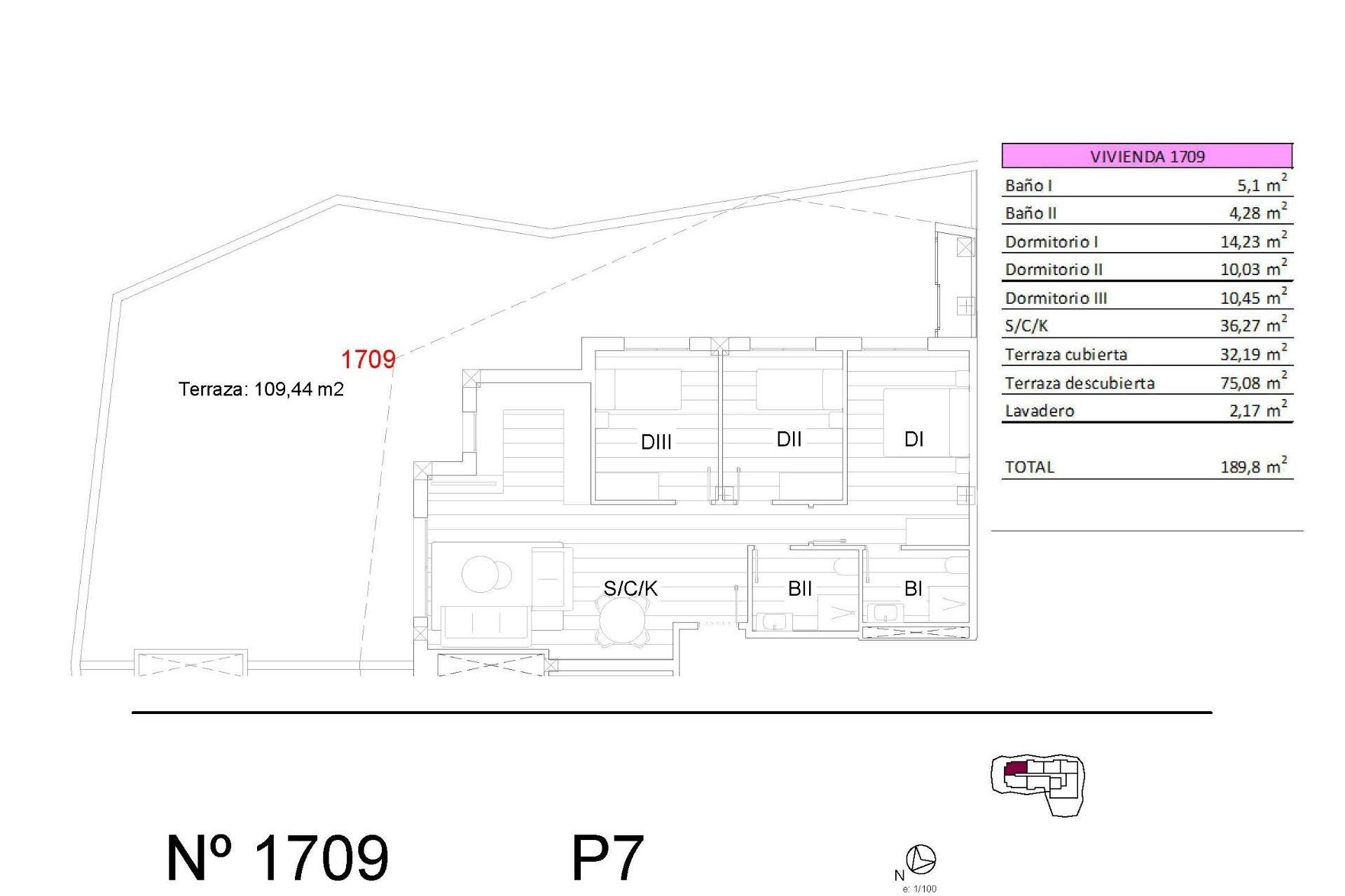
Découvrez un mode de vie moderne dans le nouveau complexe résidentiel de San Miguel de Salinas Des appartements spacieux avec des équipements étonnants Ce nouveau complexe résidentiel à San Miguel de Salinas propose des appartements contemporains de 2 et 3 chambres à coucher avec de vastes terrasses, répartis sur sept étages. La communauté fermée offre des installations de premier ordre, notamment des piscines séparées pour adultes et enfants, des espaces verts luxuriants, une aire de jeux pour enfants et une zone de bien-être pour adultes avec un circuit biosaludable. Situation privilégiée sur la Costa Blanca Niché dans la charmante ville de San Miguel de Salinas, ce complexe bénéficie d'un emplacement stratégique sur la Costa Blanca. Il se trouve à distance de marche du centre-ville, où vous trouverez tous les services essentiels à la vie quotidienne, notamment des magasins, des restaurants et des établissements de soins de santé. La propriété se trouve à une courte distance en voiture de plusieurs points d'intérêt : Les terrains de golf de Las Colinas et de Campoamor : À seulement 7 km, parfaits pour les amateurs de golf. Plages d'Orihuela Costa et de Torrevieja : Situées à environ 10 km de la résidence, elles offrent de belles plages de sable. Centres commerciaux : Le boulevard Zenia, une destination commerciale populaire, se trouve à seulement 9 km. Aéroport d'Alicante : A 50 km en voiture. Aéroport de Murcia Corvera : A environ 55 km, idéal pour les liaisons régionales. Spécifications de haute qualité Chaque appartement est conçu avec des finitions modernes et des fonctionnalités à l'esprit : Cuisines entièrement équipées avec plaques de cuisson à induction et hottes aspirantes. Revêtement de sol en grès cérame dans tout l'appartement. Volets roulants compacts pour plus d'intimité et de commodité. Placards en stratifié blanc avec rangement en hauteur dans les chambres. Climatisation préinstallée dans le salon et les chambres. Chauffe-eau aérothermiques à haut rendement énergétique d'une capacité de 150 litres. En outre, tous les appartements comprennent une place de parking désignée, avec une salle de stockage disponible en option moyennant un coût supplémentaire. À propos de San Miguel de Salinas San Miguel de Salinas est une municipalité pittoresque de la région de Vega Baja del Segura, qui fait partie de la dynamique Communauté valencienne. Située à proximité de la frontière de Murcie, la ville offre des vues à couper le souffle sur les lagunes de Torrevieja et de La Mata, ainsi qu'un environnement paisible et familial. Votre nouvelle maison vous attend Que vous soyez à la recherche d'un lieu de villégiature ou d'une résidence permanente, ce nouveau projet à San Miguel de Salinas allie luxe, commodité et emplacement imbattable. Contactez-nous dès aujourd'hui pour planifier une visite et faire le premier pas vers la propriété de vos rêves sur la Costa Blanca !