La Romana · Batistes Villa · Nouvelle construction

  • 130m2
  • 10.227m2
  • 3
  • 2
  • Oui

La Romana · Batistes Villa · Nouvelle construction

Description

VILLAS NEUVES A LA ROMANA

Caractéristiques

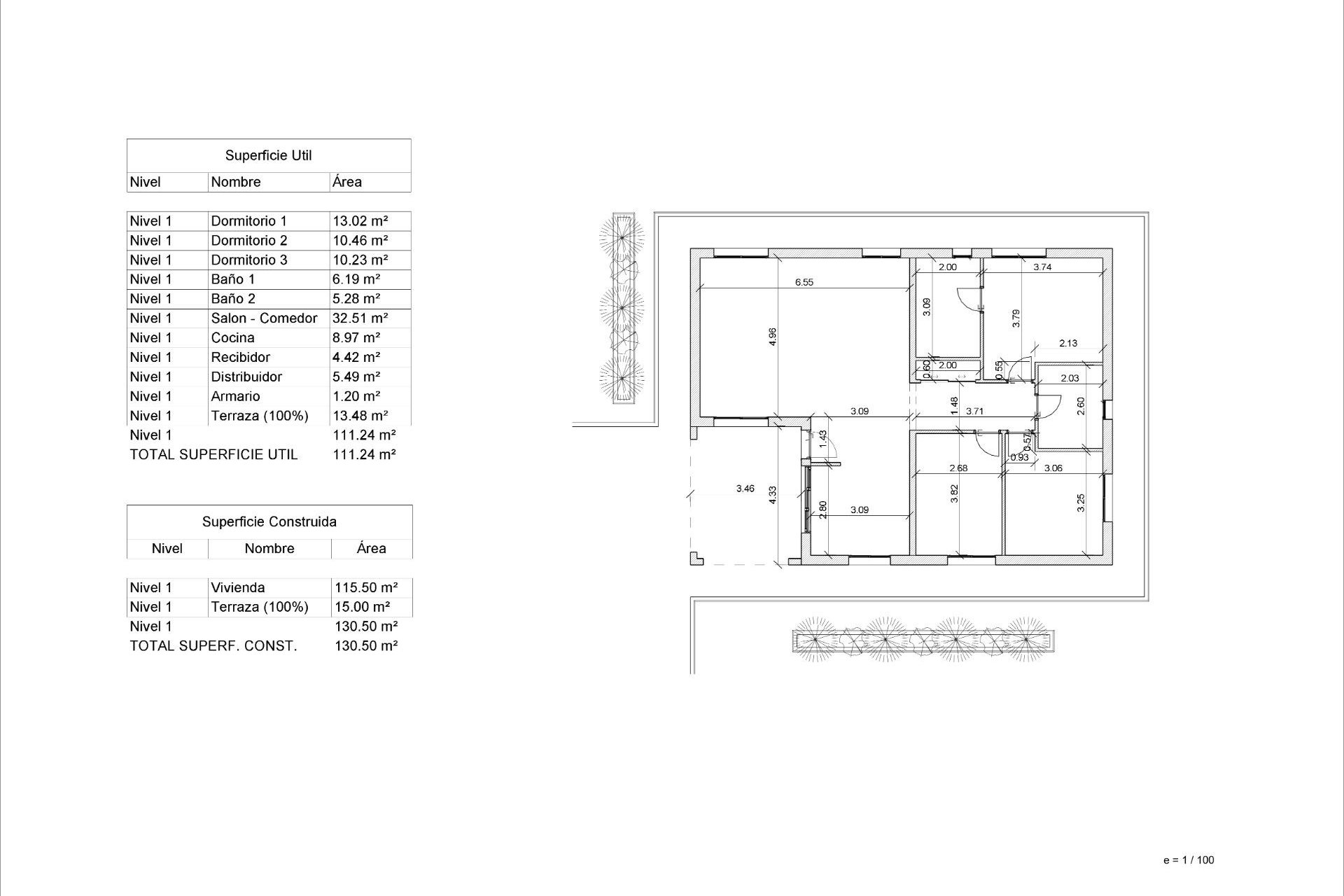
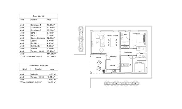
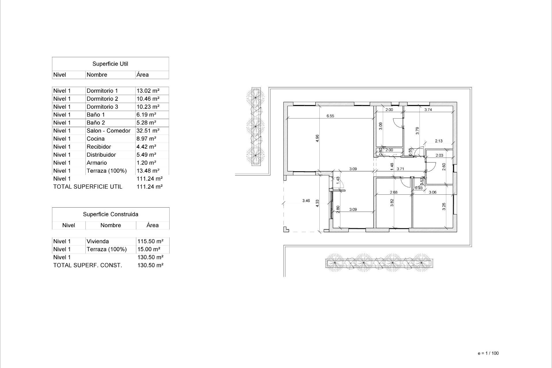
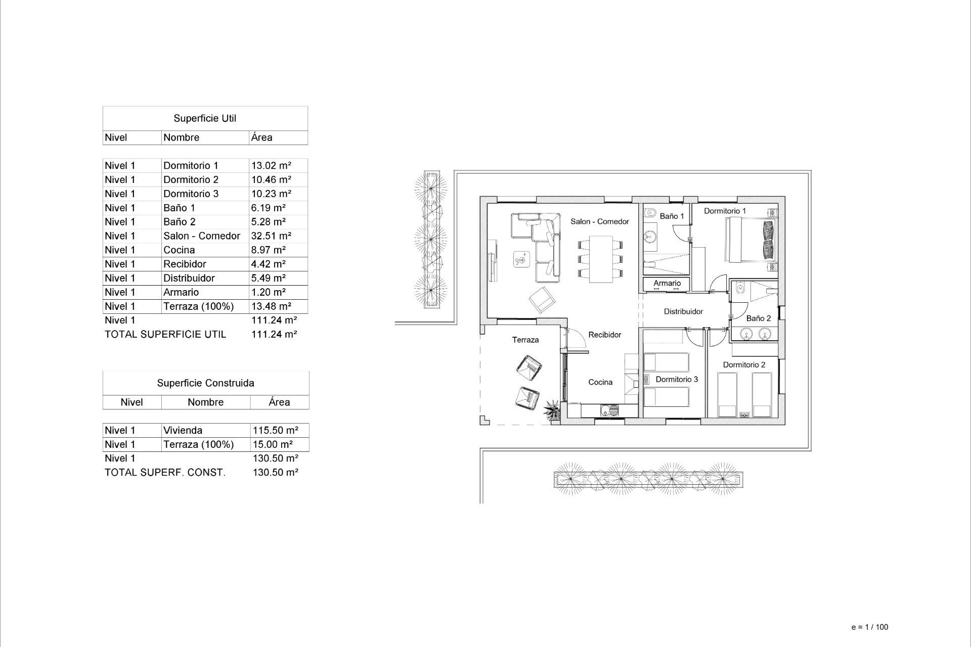
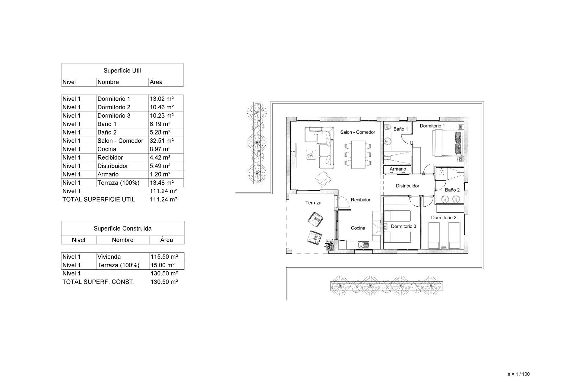
Chambres: 3
Salles de bain: 2
Construit: 130m2
Utile: 110m2
Parcelle: 10.227m2
Piscine: Oui
Distance à la plage: 40000 m
Private pool
Garden
Gated
Near Schools
Double Bedrooms: 3
Number of Parking Spaces: 1
Air Conditioning: Pre-Installed
Useable Build Space: 110 Msq.
Terrace: 15 Msq.
Parking - Space
Location: Rural, Mountain
Beach: 40000 Meters

Emplacement

Demande d’information

Responsable del tratamiento: JC IMMO Espagne, Finalidad del tratamiento: Gestión y control de los servicios ofrecidos a través de la página Web de Servicios inmobiliarios, Envío de información a traves de newsletter y otros, Legitimación: Por consentimiento, Destinatarios: No se cederan los datos, salvo para elaborar contabilidad, Derechos de las personas interesadas: Acceder, rectificar y suprimir los datos, solicitar la portabilidad de los mismos, oponerse altratamiento y solicitar la limitación de éste, Procedencia de los datos: El Propio interesado, Información Adicional: Puede consultarse la información adicional y detallada sobre protección de datos Aquí.
JC Immo
WhatsApp