Aspe · Poligono 19 Villa · Nouvelle construction

  • 223m2
  • 13.172m2
  • 4
  • 3
  • Oui

Aspe · Poligono 19 Villa · Nouvelle construction

Description

Villas neuves situées dans la commune d'Aspe.

Caractéristiques

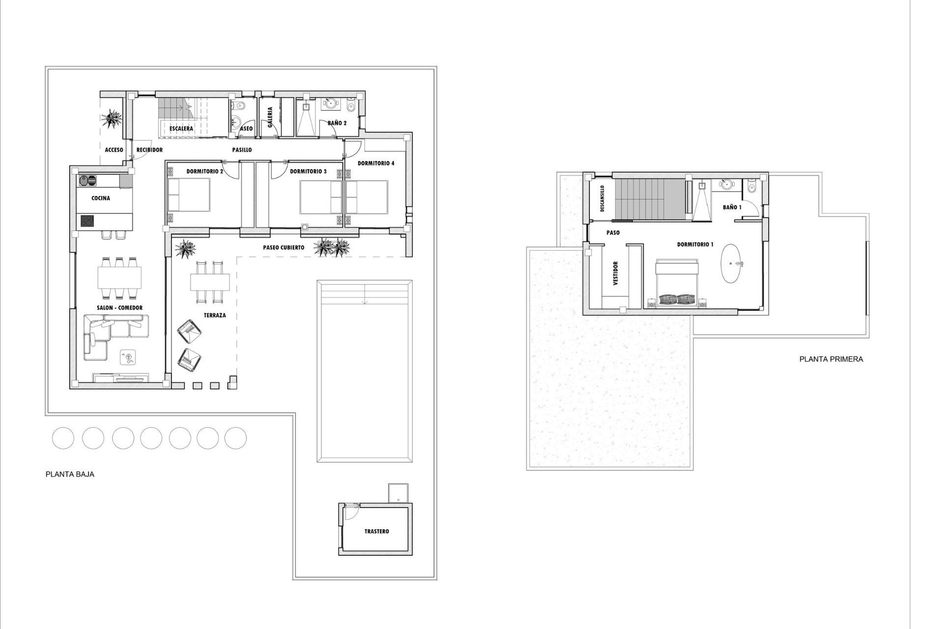
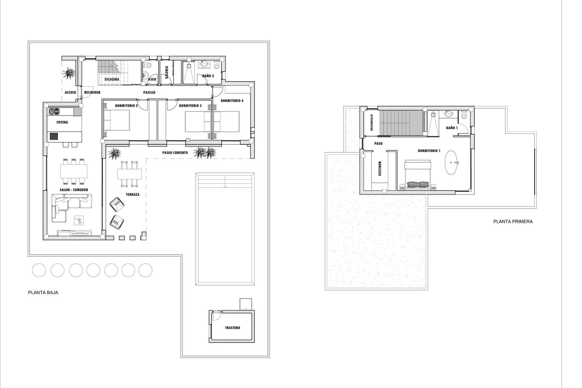
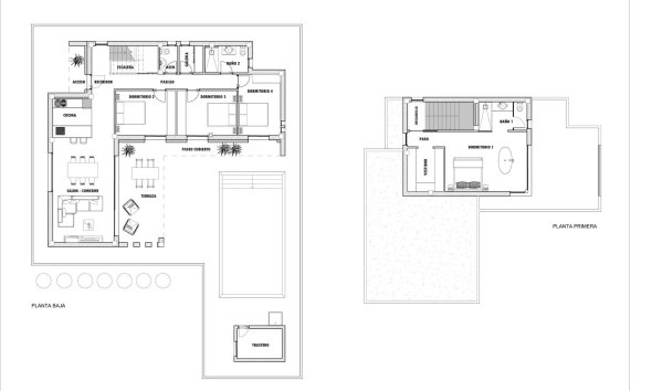
Chambres: 4
Salles de bain: 3
Construit: 223m2
Utile: 183m2
Parcelle: 13.172m2
Piscine: Oui
Distance à la plage: 40000 m
Private pool
Garden
Gated
Near Schools
Double Bedrooms: 4
Number of Parking Spaces: 1
Air Conditioning: Pre-Installed
Terrace: 34 Msq.
Parking - Space
Location: Rural, Mountain
Beach: 25000 Meters
Useable Build Space: 183 Msq.
Storage / Trastero

Emplacement

Demande d’information

Responsable del tratamiento: JC IMMO Espagne, Finalidad del tratamiento: Gestión y control de los servicios ofrecidos a través de la página Web de Servicios inmobiliarios, Envío de información a traves de newsletter y otros, Legitimación: Por consentimiento, Destinatarios: No se cederan los datos, salvo para elaborar contabilidad, Derechos de las personas interesadas: Acceder, rectificar y suprimir los datos, solicitar la portabilidad de los mismos, oponerse altratamiento y solicitar la limitación de éste, Procedencia de los datos: El Propio interesado, Información Adicional: Puede consultarse la información adicional y detallada sobre protección de datos Aquí.
JC Immo
WhatsApp