Villajoyosa · Playa del Torres Apartment · Nouvelle construction

  • 69m2
  • 48m2
  • 1
  • 1
  • Oui

Villajoyosa · Playa del Torres Apartment · Nouvelle construction

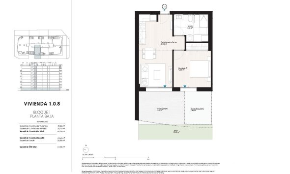
Description

Complexe de luxe à Villajoyosa - Un paradis en bord de mer

Caractéristiques

Chambres: 1
Salles de bain: 1
Construit: 69m2
Utile: 61m2
Parcelle: 48m2
Piscine: Oui
Distance à la plage: 400 m
Elevator/Lift
Garden
Gated
Near Schools
Near Commercial Center
Location: Coastal, Urbanisation
Air Conditioning: Yes
Communal Pool
Number of Parking Spaces: 1
Gym
Terrace: 20 Msq.
Jacuzzi
Double Bedrooms: 1
Parking - Space
Beach: 400 Meters
Useable Build Space: 61 Msq.

Emplacement

Demande d’information

Responsable del tratamiento: JC IMMO Espagne, Finalidad del tratamiento: Gestión y control de los servicios ofrecidos a través de la página Web de Servicios inmobiliarios, Envío de información a traves de newsletter y otros, Legitimación: Por consentimiento, Destinatarios: No se cederan los datos, salvo para elaborar contabilidad, Derechos de las personas interesadas: Acceder, rectificar y suprimir los datos, solicitar la portabilidad de los mismos, oponerse altratamiento y solicitar la limitación de éste, Procedencia de los datos: El Propio interesado, Información Adicional: Puede consultarse la información adicional y detallada sobre protección de datos Aquí.
JC Immo
WhatsApp