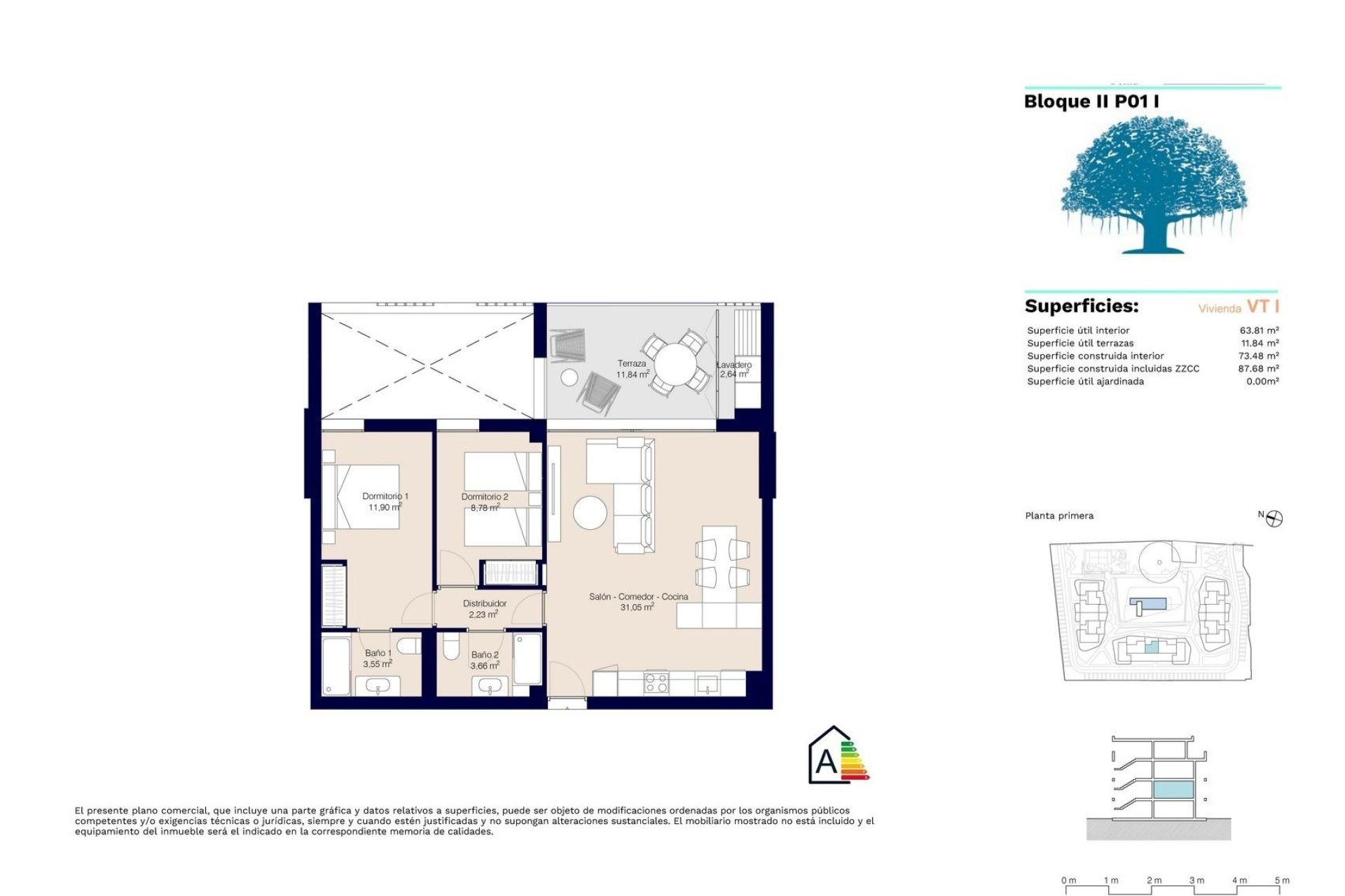
Exclusivo Complejo Residencial de Obra Nueva Cerca del Mar y del Centro de Denia Viva entre el Mediterráneo y el Parque Natural del Montgó Situado en una zona privilegiada de Denia, este nuevo complejo residencial ofrece el equilibrio perfecto entre el mar Mediterráneo y la impresionante montaña del Montgó, un parque natural protegido. Disfrute de lo mejor de ambos mundos: impresionantes playas de arena y roca, impresionantes paisajes y una vibrante ciudad llena de historia y cultura. Denia: Una encantadora ciudad costera Denia, con una población de 43.000 habitantes, es un conocido destino turístico y gastronómico de la Costa Blanca. Esta ciudad portuaria ofrece conexiones directas en ferry con las Islas Baleares, excelentes infraestructuras y fácil acceso a Alicante y Valencia a través de las principales carreteras y el transporte público. La ciudad es famosa por: Su patrimonio histórico, incluido el emblemático Castillo de Denia. Su gastronomía de primer nivel, reconocida por la UNESCO como Ciudad Creativa de la Gastronomía. Fiestas de Interés Turístico Nacional, como los Bous a la Mar y las Fallas. Un clima cálido y agradable durante todo el año, perfecto para realizar actividades al aire libre. Una ubicación privilegiada con todo a su alcance Esta nueva promoción está situada en una de las zonas más cotizadas de Denia, a sólo 10 minutos a pie del centro de la ciudad y a un corto paseo de la playa. Supermercados - 2 minutos a pie. Principales calles comerciales de Denia - 10 minutos a pie. Playas - A pocos minutos a pie. Puerto y Marina de Denia - 2 km. Aeropuertos de Alicante y Valencia - 1 hora en coche. Acceso a las principales autopistas - Conexiones directas con AP-7 y N-332. Viviendas modernas en un complejo residencial de estilo mediterráneo Esta nueva promoción cuenta con 63 exclusivas viviendas de 2 y 3 dormitorios, distribuidas en tres edificios de diseño mediterráneo contemporáneo. Cada residencia incluye: Un trastero privado y una plaza de aparcamiento. Interiores amplios y luminosos, diseñados para el confort. Cocinas totalmente equipadas con electrodomésticos de primeras marcas. Elementos de eficiencia energética, incluyendo climatización aerotérmica. Acabados de alta calidad, como carpintería de PVC, ventanas Climalit y cristales de seguridad Stadip. Una experiencia única en plena naturaleza Los 10.000 m² de zonas verdes comunes han sido diseñados por expertos paisajistas, respetando la belleza natural del entorno. Dentro del complejo encontrará: Un caserío protegido del siglo XIX y un ficus centenario. Piscina y solarium, perfectos para relajarse. Gimnasio, pista de pádel y zona de juegos infantiles. Un club social para residentes. Aparcamiento para bicicletas y puntos de recarga de vehículos eléctricos. Un hogar ideal para vivir todo el año o como inversión Este complejo residencial es perfecto para vivir permanentemente o como una inversión inteligente en una de las zonas más atractivas de la Costa Blanca. Con servicios de primer nivel, una ubicación privilegiada y un diseño excepcional, esta es una oportunidad única de poseer una casa moderna en Denia. ¡Póngase en contacto con nosotros hoy para más detalles o para programar una visita!